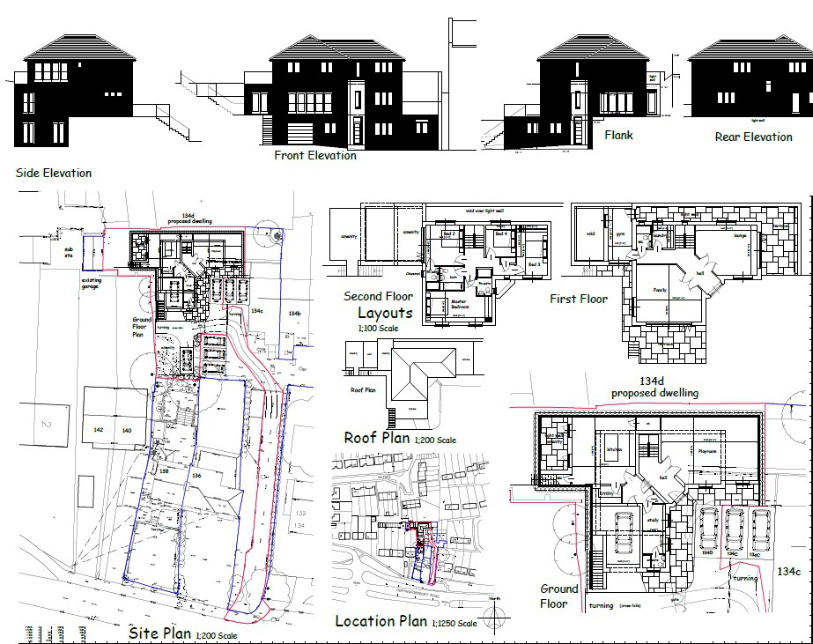
Project Info:
A tricky site to unlock that involved purchasing a neighbouring property and an adjacent private access road. The doner property 138 Hertingfordbury rd consisted of a 1950’s semi on a long narrow plot that climbed steeply to the rear. We achieved 3 separate planning approvals with the most recent being for a huge 3500sq’ detached over 3 floors.












